找回密码
 注册
搜索
查看: 1116|回复: 5

[豪宅] 顶级事务所SAOTA又出新作!奢华海边豪宅,把国内的别墅秒成渣

[复制链接]
发表于 2021-6-25 01:57 PM | 显示全部楼层 |阅读模式


顶级事务所SAOTA又出新作!奢华海边豪宅,把国内的别墅秒成渣

 DesignBon 邦哥看豪宅  2021-06-24
"

40.jpg

"



SAOTA海边豪宅杰作

_________________________________________


比起居于城市,放任生活的仪式感逐渐被车笛和工作瓦解,人们更愿意赴约大海,在浪涛的怀抱中疗愈身心,“海景房”也随之成为了颇受欢迎的避世之居。


归属于大西洋的班特里海湾,数十年如一日承载着周边楼宇的诗意栖居梦,如果你始终贪心于这里最美的一处景色和最陶醉的生活,不妨来到Horizon Villa一探究竟。


41.jpg



依山靠海

私享美景致敬生活


Horizon Villa由全球知名事务所SAOTA设计,建筑以“左拥右抱”的姿态示人——它倚靠群山,向大海敞开怀抱,浪花涌动,日光辉映,山石绿树紧密相依,整座建筑被原始自然景观所围合,美好生活也随之而成。


42.jpg


建筑采用半封闭结构,设有多个区域亲近自然——无边泳池、室外客厅及休息椅共同组成户外区域。木与白在阳光与海风中相得益彰,赋予空间浓郁的户外风情。


43.jpg


经由匠心打磨的雕塑形成流线体的艺术形状,呼应前方海水及池水的灵动。


44.jpg


Horizon Villa整体由玻璃与黑色钢制框架构成,人居与自然之间的界限被隐形化。建筑中庭铺设草地,中心雕塑满载艺术气息,对草地进行点缀。


45.jpg


客厅与餐厅均可通往此处,丰富了区域功能性。茶余饭后,在草坪静躺,透过头顶的枝叶,猜透天空的“小心思”,在一片绿意中感受生活的诗意。



木色游走

艺术画作大行其道


木色与白色在室内交融游走,凸显温润醇厚的空间氛围,与室外的水景互为补充。


46.png


艺术挂画在空间中大行其道,夸张的色彩,清奇的构图从客厅延伸至卧室,向人们传达多样化的美感和故事。在家中随意走动,偶尔看向墙面,整个家则“变身”为画廊,给予住户别样的艺术体验。


47.jpg


客厅中,沙发的L形以弧线顺滑收尾,极具亲切感。皮革、玻璃、藤编材质相辅相成,不同的材料赋予客厅舒适感与奢华质感。平滑的触感与地面的毡毛地毯形成视觉上的对比。


48.jpg


红色悬空立方体,宛如失重于空间的奇特装置,为原本温馨静谧的空间带来更多活力。


49.jpg

50.png


木色背景下,餐厅由白色和银色构成,阳光顺窗而入,餐椅则被镶上光边,因美食而起的生活仪式感开始闪耀,素雅氛围呼之欲出。


51.jpg


通向厨房的路采用矮楼梯设计,不起眼的高度将餐厅与厨房有所区分。黑色穿插在空间中部,若没有原木材料的“提醒”,整个厨房则悄然隐形。


52.png

53.jpg


卧室在灯光和深木色地板的烘托下,展现出强烈的包豪斯风格与复古情怀。格子状的墙壁凹凸不平,丰富室内纹理的同时起到隔音的效果。


54.jpg


二楼的书桌既能俯瞰一楼的情况,又能远眺前方的海浪悠悠,惬意生活由你决定。


55.jpg


利用天窗及缝隙,阳光“钻进”了卫生间的每个角落,并形成了斑驳的光影。大理石台面上的黑白线条与木饰底座的规整直线相结合,一动一静。错开的镜面将外部景色微微“切割”,最终重新“拼接”的景色映入卫生间。


56.jpg


在暗藏心机的设计中,找寻生活的诗意与理想,Horizon Villa通过绝佳的视觉角度、考究的室内布局,向人们真诚发出邀请:盛夏已至,别压抑对大海的野心,冲鸭!


57.png

58.png

59.png

60.png



内容策划 / Presented

策划 Producer :DesignBon

文 Writer :Michiyo     排版 Editor:Fin

图片版权 Copyright :SAOTA

发表于 2021-6-27 05:45 PM | 显示全部楼层
买海边的地产绝对是错误的。由于气候加速变暖,海平面上升加快,海边的房产将受到极大冲击。

评分

1

查看全部评分

回复 鲜花 鸡蛋

使用道具 举报

发表于 2021-6-28 05:35 PM | 显示全部楼层
木有全景吗?别就是个condo啊,哈哈。

评分

1

查看全部评分

回复 鲜花 鸡蛋

使用道具 举报

发表于 2021-6-28 05:36 PM | 显示全部楼层
sharkmatine 发表于 2021-6-27 05:45 PM
买海边的地产绝对是错误的。由于气候加速变暖,海平面上升加快,海边的房产将受到极大冲击。

有道理,而且还有海啸!
回复 鲜花 鸡蛋

使用道具 举报

 楼主| 发表于 2021-6-28 05:57 PM | 显示全部楼层
Cobra 发表于 2021-6-28 05:35 PM
木有全景吗?别就是个condo啊,哈哈。

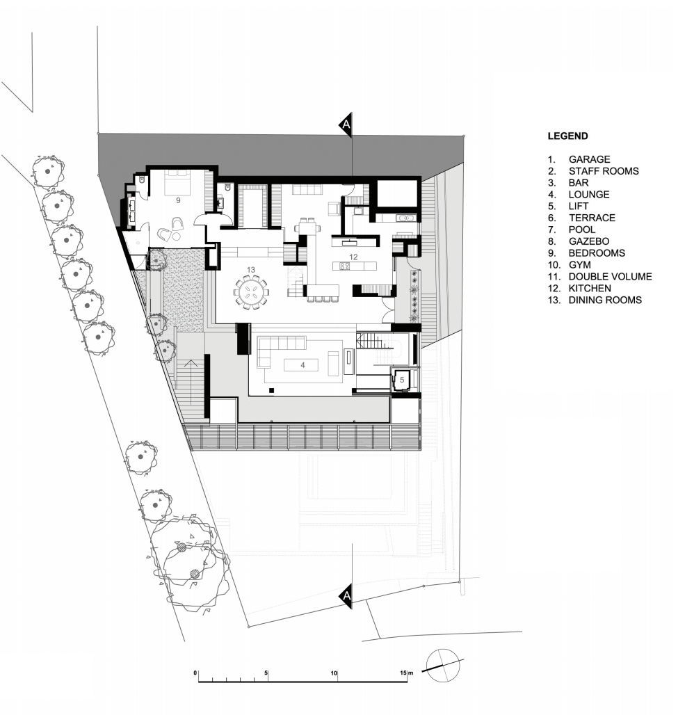
从最后的图纸看,应该是独栋别墅。
回复 鲜花 鸡蛋

使用道具 举报

发表于 2021-6-28 06:49 PM | 显示全部楼层
源济 发表于 2021-6-28 05:57 PM
从最后的图纸看,应该是独栋别墅。


相对与动辄千万的豪宅,这个面积不大感觉。

评分

1

查看全部评分

回复 鲜花 鸡蛋

使用道具 举报

您需要登录后才可以回帖 登录 | 注册

本版积分规则

手机版|小黑屋|www.hutong9.net

GMT-5, 2025-12-17 06:25 AM , Processed in 0.064363 second(s), 19 queries .

Powered by Discuz! X3.5

© 2001-2025 Discuz! Team.

快速回复 返回顶部 返回列表