找回密码
 注册
搜索
查看: 1558|回复: 0

[豪宅] 首发|1000㎡极简豪宅 ,原木风真够味儿!

[复制链接]
发表于 2024-10-23 09:41 PM | 显示全部楼层 |阅读模式


首发|1000㎡极简豪宅 ,原木风真够味儿!

 DesignBon 邦哥看豪宅 2024年10月23日 09:30

IMG_1145.JPG

豪宅


1000㎡江景别墅

-



江水虽不似海水那般的湛蓝,

但却有着独一份的静谧,

傍水而居,

享受着晚风,

也陶冶着情操。

大家好,我是《邦哥看豪宅》的主理人邦哥,专为设计师分享设计灵感及干货。我们致力于为设计师提供更好的设计思路,让中国设计能走向全球。


当江景遇上别墅,究竟会是何种模样,今天我们就一起去看看吧~



以自然为出发点
面朝江景 远眺群山

建筑物位于一座岛屿之上,和江景市区都有着独特的联系,可谓是地理位置绝佳,但建筑物原有的传统欧式风格却让空间和自然格格不入,于是设计师对整体进行了改造,让更多的封闭空间得以敞开,迎接着自然的“入户”。



IMG_1146.JPG


IMG_1147.JPG

IMG_1148.JPG


设计师在玄关处选用了独特的柚木,打造了此处清澈通透的质感,让居住者在归家的那一刻便能清晰的感知到归属感。


IMG_1149.JPG
IMG_1150.JPG
IMG_1151.JPG
IMG_1152.JPG
IMG_1153.JPG
几扇窄窗便足够烘托室内的浪漫气息,窗外的景色也因为窄窗的框景效果,而间接地修饰着内在,增添了空间的通透性。


IMG_1154.JPG

IMG_1155.JPG


IMG_1156.JPG

IMG_1157.JPG




纯粹的生活空间
忠于生活的本质


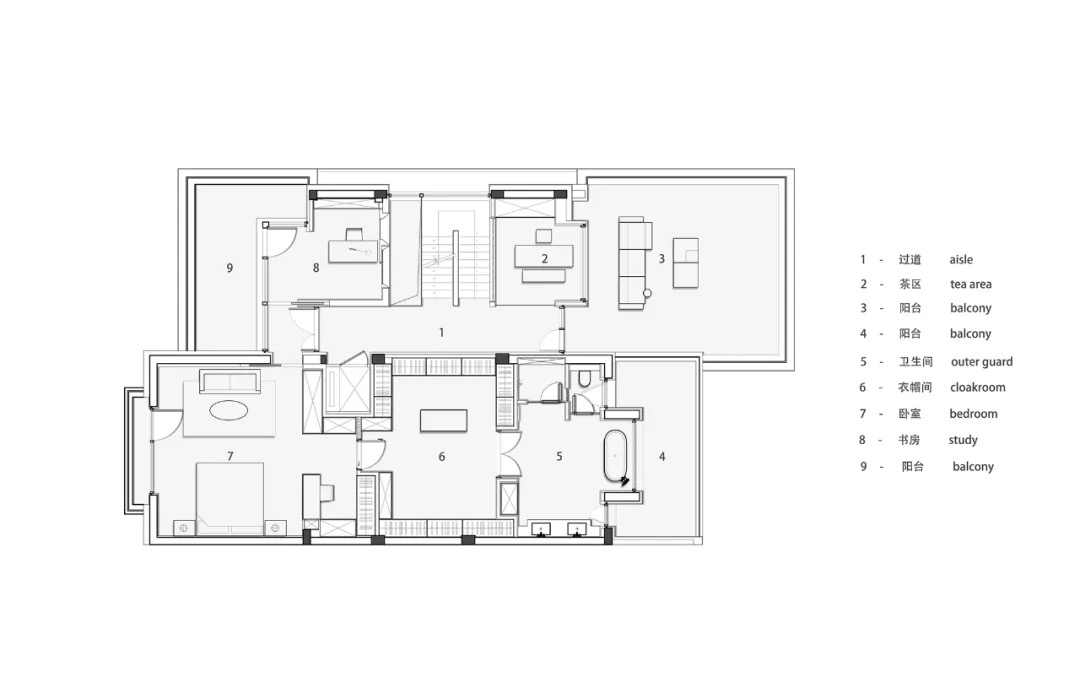
豪宅的整体框架非常大,内部的空间必须仔细的布局,才能展现出各个区域该有的功能性。


IMG_1158.JPG

IMG_1159.JPG


IMG_1160.JPG

IMG_1161.JPG



开放式的客厅塑造了此处的无限可能,以多功能性为基础,建构着空间大厦,打造了极高的生活品质,门口的微风带来了自然的讯息,轻抚着绿植,也掠过了书本,最终吹进了居住者的内心。


IMG_1162.JPG

IMG_1163.JPG


IMG_1164.JPG

IMG_1165.JPG

IMG_1166.JPG

沿着极具艺术性的曲线楼梯便来到了二楼,率先映入眼帘的便是餐厅,餐厅内暖阳四溢,有着春天一般的温暖,丝滑的动线更是打动了每一寸时光。


IMG_1167.JPG

IMG_1168.PNG


IMG_1169.JPG

IMG_1170.JPG


二层空间有着自己的开放和闭合,为整体注入了满满的仪式感,同时也为空间注入了更多的松弛和张力,让生活随居住者的心意而改变着。


IMG_1171.JPG

IMG_1172.JPG

IMG_1173.JPG



楼梯衔接着上下层空间,同时也以自身的线条之美重塑着空间的质感,平衡了结构,为室内注入了更多的秩序感。


IMG_1174.JPG

IMG_1175.JPG


IMG_1176.JPG

IMG_1177.JPG


Z字形衔接着二楼和三楼,设计师通过对楼梯样式的变化,展现着空间设计的多元性,充分的诠释了此处设计的精致感。


IMG_1178.JPG


IMG_1179.JPG

IMG_1180.JPG

IMG_1181.JPG




隐秘的流动线
开放与闭合的自由切换


位于三楼的主卧,尽享着窗外的暖阳,格外静谧的氛围中,竟然多了些雅致的趣味性,让居住者倍感舒适和惬意。



IMG_1182.JPG

IMG_1183.JPG


IMG_1184.JPG


室内选用了原木色的家具与纯白的软装,打造了色彩上的宁静,同时也建构了此处的张弛有度,丰富了内在的轻松的氛围。


IMG_1185.JPG

IMG_1186.JPG

IMG_1187.JPG


卫浴的设计有着浓郁的现代风格气息,极具现代化的材质相聚于此,书写着生活的惬意和故事的婉转。
‍‍‍‍‍‍‍

IMG_1188.JPG

IMG_1189.JPG

IMG_1190.JPG


书房和茶室有着浓郁的人文主义精神,当然也离不开功能性的加持,整体都在光线的修饰下,更加的宁静,更加的静雅了。


IMG_1191.JPG

IMG_1192.JPG

IMG_1193.JPG


透明的天窗延伸了纵向的视野,同时也带来了自由的体验感,让居住者能在家中感受到最大程度的自由。


IMG_1194.JPG

IMG_1195.JPG


IMG_1196.JPG

IMG_1197.JPG

IMG_1198.JPG


在地下室中,健身房、酒吧和休息区等功能性的空间应有尽有,同时设计师还引入了自然的光线,点亮了此处空间,注入了更多的生命气息。


IMG_1199.JPG

IMG_1200.JPG


庭院的设计更显匠心精神,角落处的灯带经过几十次的修改,最终才呈现出了精致且完美的照明效果。


IMG_1201.JPG

IMG_1202.JPG

IMG_1203.JPG


IMG_1204.JPG


IMG_1205.JPG


IMG_1206.JPG

IMG_1207.JPG



内容策划 / Presented

划 Producer :DesignBon
撰文 Writer :Amanda    排版 Editor:Fin
设计Design&版权©:吉尚设计

您需要登录后才可以回帖 登录 | 注册

本版积分规则

手机版|小黑屋|www.hutong9.net

GMT-5, 2025-11-1 09:44 PM , Processed in 0.046374 second(s), 18 queries .

Powered by Discuz! X3.5

© 2001-2024 Discuz! Team.

快速回复 返回顶部 返回列表